Running on Cargo
Writing
Building
Furnishing
Lighting
Light Architecture Film
About Carlo Volf
Following (0)
Previous / Next image (1 of 1)
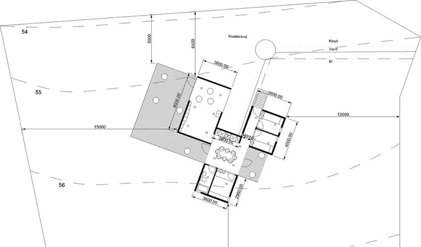
(22,309 views) Filed under Building 
Writing 
Writing 
Building 
Building 
Furnishing 
Furnishing 
Lighting 
Lighting